ADREÇA: Crta. Calvià-Palmanova, 43, Par. 144, Pol. 12, Calvià

PLACES: 30

COST PREVIST TOTAL: 980.737,05€ (fons IMAS + Ajuntament + Propi)

INICI: 2019

FINALITZACIÓ: 2026

desc_2025_04_02_CALVIA_1.jpg

desc_2025_04_02_CALVIA_2.jpg

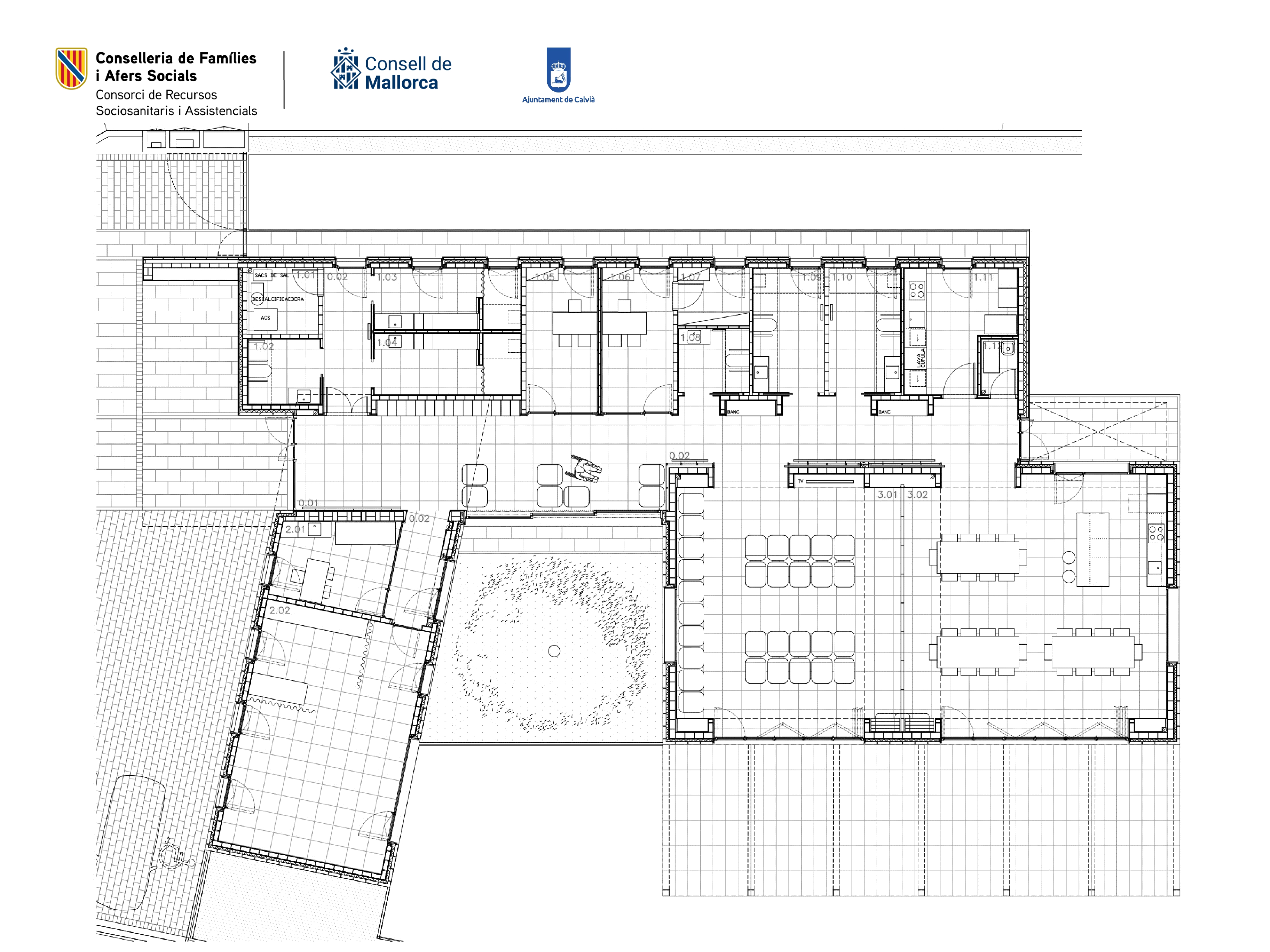
Descripció del projecte:

El Centre de dia és un servei d’acollida diürna i recolzament, així com d’assistència a les activitats de la vida diària per un grup d’usuaris.

Donada l’escassa mobilitat general dels usuaris, les estàncies es disposaran de manera que el desplaçament cap a les diferents activitats sigui mínim. Per tant, la sala de descans i la sala polivalent estan situades de manera contigua i que en cap cas s’hagi de mobilitzar als grups d’usuaris. Per tot això, l’edifici ubica totes les estàncies del centre a la planta baixa, evitant així desplaçaments verticals.

 

Actuacions:

  • Conveni: 27/11/2019 amb l'Ajuntament de Calvià.
  • Adjudicació arquitecte: 17/06/2020, PSO 2/2020, Opposite Architects SLP.
  • Adjudicació obra: 29/09/2021, POO 5/2021, UTE Insae SA-Tr Construya SLU.
  • Acta de comprovació i replanteig: 01/10/2024.
  • Adjudicació mobiliari: 28/04/2023, PSUBO 1/2023, MP Diclesa SL.
  • Acta de recepció: 3/10/2023.